Overview
- Updated On:
- 22 Settembre 2023
- 3 Bedrooms
- 2 Bathrooms
- 135 m2
Descrizione
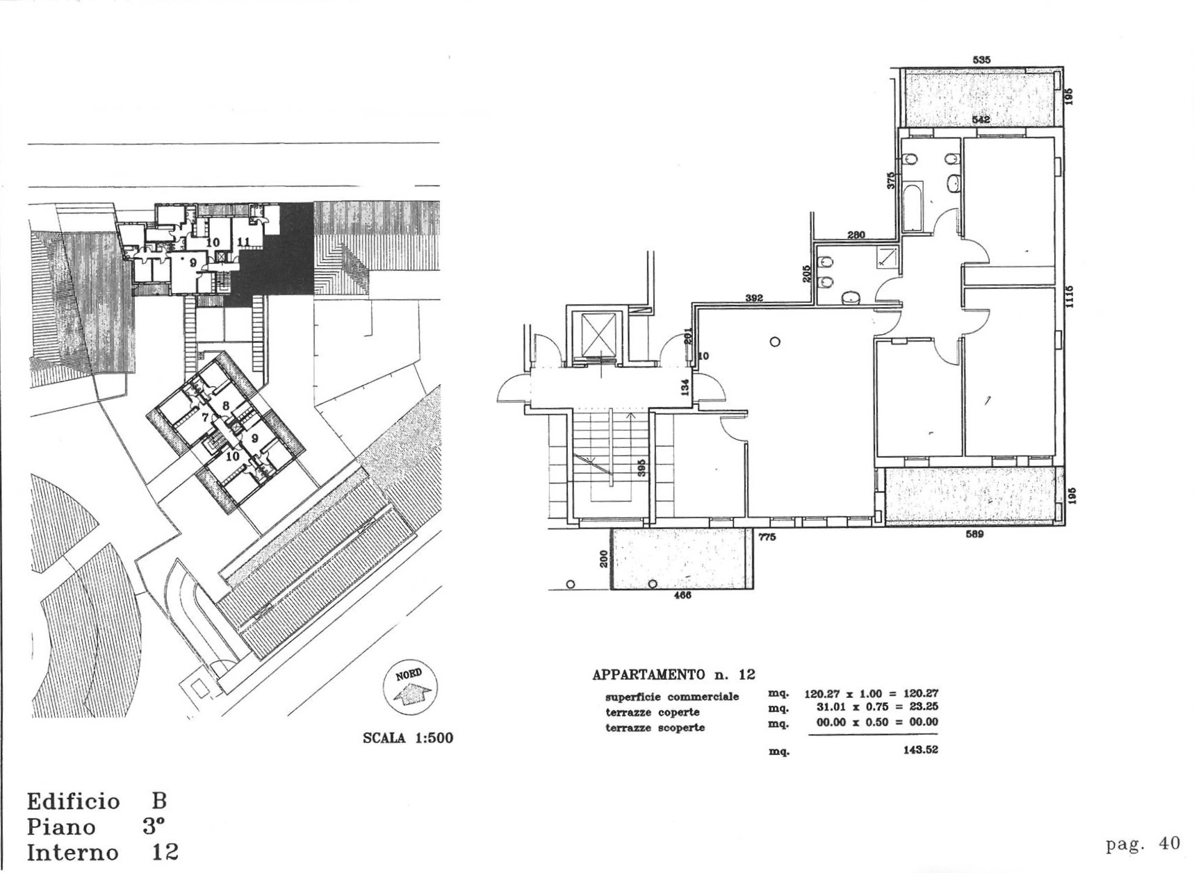
Ampio quadrilocale di 150 mq al terzo piano, con spaziosi balconi abitabili, in un nuovo complesso in eccellente posizione per: imbocco autostrada, scuole, biblioteche, mezzi di trasporto, a pochi passi da Via Zambonate – Coin.
Interessante poter scegliere le finiture, come pavimenti, sanitari.. consentono di dare un tocco personale all’appartamento.
Ingresso con ampio soggiorno, cucina abitabile, tre comode camere da letto e doppi servizi finestrati, uno con doccia e il secondo con vasca idromassaggio.
Spaziosi balconi abitabili.
Riscaldamento autonomo.Possibilita’ di uno o due box
Energy Index in kWh/m2a: 70 Kwh/m2a
Energy Class: C
A+
A
B
70 Kwh/m2a kWh/m²a Energy class C
CD
E
F
G
H
Property Id: 34993
Price: € 360,000
Property Size: 135 m2
Property Lot Size: 135 m2
Rooms: 3
Bedrooms: 3
Bathrooms: 2
Anno di costruzione: 2022
Garage: 1/2
Tipo di struttura: Cement
Nr. di Piani: 5
Other Features
Piano alto
Balcone
Garage
Ascensore
Condizionamento
Prestigio
Luce elettrica
Sab
25
Apr
Dom
26
Apr
Lun
27
Apr
Mar
28
Apr
Mer
29
Apr
Gio
30
Apr
Ven
01
Mag
Sab
02
Mag
Dom
03
Mag
Lun
04
Mag
Your information
Other Agents
Nella Graniti
Grazie alla profonda conoscenza del territorio di Bergamo, i numerosi contatti e le innate ...
Property Reviews
No reviews found.
You need to login in order to post a review
Similar Listings
Attico in centro con terrazza di 100 mq
€ 1,120,000
L’ingresso conduce a un soggiorno ampio e luminoso, uno spazio pensato per vivere momenti ...
Casa indipendente terra tetto con posto auto
€ 355,000
In esclusiva proponiamo splendida casa indipendente in centro con posto auto; l'immobile s ...
Ampio e signorile appartamento con terrazza
€ 1,060,000
Piazza Pontida/Via Broseta Alta - Casafeltri propone in esclusiva in palazzo nobiliare sig ...
Vendita A Bergamo – Attico con terrazz...
€ 700,000
Attico di prestigio, situato a valtesse, all'interno di un contesto signorile. un'elegante ...























