Overview
- Updated On:
- 12 Giugno 2025
- 3 Bedrooms
- 2 Bathrooms
- 140 m2
Descrizione
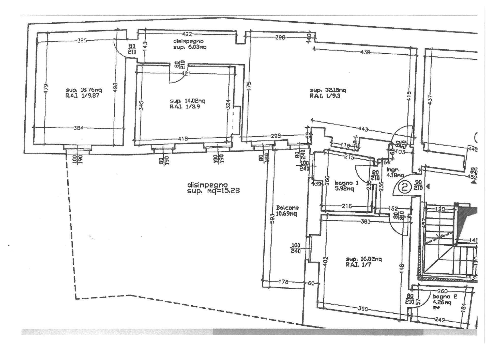
Casafeltri propone in esclusiva nella centralissima Via S.Alessandro splendido appartamento di 140 mq in stabile del 1600 completamente ristrutturato con comodo ascensore che dal piano porta ai box.
Soggiorno open space con cucina ben attrezzata e completa di tutti gli elettrodomestici, due comode camere di cui una matrimoniale, bagno finestrato e terza camera matrimoniale con bagno padronale.
Comodo e spazioso balcone a ringhiera con affaccio sulla corte interna rende la proprieta’ molto tranquilla e riservata.
Riscaldamento e raffrescamento a pavimento autonomo,
Contesto signorile
Classe energetica B, libero da Giugno 2025
Energy Index in kWh/m2a: 40 Kwh/m2a
Energy Class: B
A+
A
40 Kwh/m2a kWh/m²a Energy class B
BC
D
E
F
G
H
Property Id: 37031
Price: € 540,000
Property Size: 140 m2
Rooms: 4
Bedrooms: 3
Bathrooms: 2
Anno di costruzione: 1600
Tipo di struttura: Cement
Nr. di Piani: 3
Other Features
Cantina
Balcone
Ascensore
Impianto allarme
Condizionamento
Videocitofono
Prestigio
Posto auto
Luce elettrica
Imm. investimento
Mar
18
Nov
Mer
19
Nov
Gio
20
Nov
Ven
21
Nov
Sab
22
Nov
Dom
23
Nov
Lun
24
Nov
Mar
25
Nov
Mer
26
Nov
Gio
27
Nov
Your information
Other Agents
Nella Graniti
Grazie alla profonda conoscenza del territorio di Bergamo, i numerosi contatti e le innate ...
Property Reviews
No reviews found.
You need to login in order to post a review
Similar Listings
Bergamo vendita quadrilocale ristrutturato
€ 335,000
Nelle vicinanze dell' Accademia Carrara e nuova Gamec, elegante appartamento di 131 mq sit ...
Porzione di Villa in vendita a Mozzo
€ 475,000
Porzione di villa bifamiliare. La posizione è strategica, in quanto si trova a pochi passi ...
Quadrilocale con elegante vista
€ € 690,000
In uno dei contesti più prestigiosi di Bergamo e delle vie più ricercate del centro città, ...
Elegante pentalocale con giardino di proprie...
€ 700,000
Pentalocale di mq 220 completamente ristrutturato nel 2018, con giardino di proprietà nel ...























